Rodinný dom na predaj v Piešťanoch
V exkluzívnom zastúpení majiteľa ponúkame na predaj samostatne stojaci 3-izbový, čiastočne podpivničený rodinný dom so sedlovou strechou, v Piešťanoch na Hviezdoslavovej ulici, priamo v centre mesta. Dom je postavený z plnej pálenej tehly a z klasických poctivých materiálov, s vyššími stropmi a drevenými oknami, v architektúre danej doby. Úžitková plocha domu je približne 108 m2, zastavaná plocha domu je 124 m2. Celková výmera pozemku s domom je 182 m2.
Rodinný dom stojí priamo na Hviezdoslavovej ulici avšak vstup do domu je z bočnej tichej slepej uličky. K domu patrí aj spoluvlastnícky podiel na tejto uličke - prístupovej ceste, z ktorej je možné vybudovať vstup na pozemok za účelom zaparkovania motorového vozidla.
Dom je napojený na všetky inžinierke siete – plyn, elektrina, voda a kanalizácia. Izby sú vykurované prostredníctvom plynových gamatiek s odvodom spalín do komínových telies, prieduchov, čo pri rekonštrukcii dáva možnosť vybudovania napr. kozubu. Dom je v udržiavanom pôvodnom stave, avšak vyžaduje rekonštrukciu. Dom sa dá využiť tak na bývanie ako aj na administratívne účely – kancelárie, aj ako sídlo firmy alebo ambulancia lekára.
Dispozícia domu:
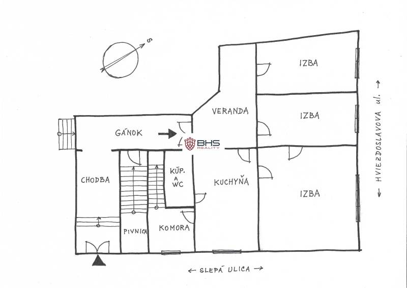
Na prízemí sa cez vnútorný gánok prichádza k hlavnému vstupu do domu, za ktorým je veľkými oknami presvetlená vstupná chodba. Z chodby sa vstupuje do dvoch miestností (izieb) a do kuchyne, z jednej z týchto izieb sa vstupuje do najväčšej miestnosti (spálne), ktorá je tiež prepojená dverami s kuchyňou. Z kuchyne sú ďalšie dvoje dvere, jedny sú dvere do kúpeľne a druhými sa vstupuje do priestrannej komory. V tejto komore je schodisko idúce smerom do podkrovia. Z gánku sa vchádza schodiskom do spodnej pivničnej časti domu, ktorá zaberá asi 1/3 pôdorysu domu.
Lokalita
Dom je výborne umiestnený v centre Piešťan, všetko čo je potrebné je poruke, v pešej dostupnosti. V blízkom okolí sa nachádza kompletná občianska vybavenosť, reštaurácie, kaviarne a banky, školy, škôlky, lekári atď., napr. nákupné centrum Aupark Piešťany je od domu vzdialené do 100 metrov (2 minúty chôdze).
Odporúčanie
Dom ponúka možnosť spojenia bývania a podnikania. Zachovanie pôvodnej exteriérovej architektúry obdobia a moderný interiérový dizajn môžu vniesť do domu čaro spojenia obidvoch období.
Cena rodinného domu je vrátane sprostredkovateľskej provízie, kompletného právneho a realitného servisu a hypotekárnych služieb.
Informácie : tel. č.: 0948 585 678, Iva Bedejová, iva.bedejova1@gmail.com
Patríme (BHS Reality, s.r.o.) k členom Realitnej únie SR a ZRKS. S nami získavate garanciu profesionálnych právnych služieb, komplexného poradenstva a bezproblémového priebehu realizovanej kúpy/predaja.
Všetky technické údaje podliehajú zmenám a sú založené na informáciách poskytnutých majiteľom.
©Text a fotografie sú autorským dielom a majetkom realitnej kancelárie BHS Reality, s.r.o..
Podrobné informácie
Poloha nehnuteľnosti na mape
Hviezdoslavova, Piešťany, Slovensko


